Header IUT de Haguenau - SAE 102
IUT - SAE 102

Présentation

Pour nous mettre dans le contexte, ici nous allons parler de l’entreprise KUHN SA qui conçoit et fabrique des équipements agricoles. Cette entreprise possède une fonderie qui demande une modernisation. Actuellement, cette fonderie est en logique câblée et l’entreprise souhaite passer vers un système en logique programmée tout en utilisant un Automate Programmable Industriel (API)

Nous allons donc devoir effectuer le retrofit de cette fonderie qui est principalement la commande des moteurs des bandes de convoyage du sable dans cette fonderie en prenant en compte toutes les sécurités nécessaires ainsi que le bon fonctionnement de celle-ci En programmant le tout sur TIA portal et en faisant de design de l’IHM.

Cahier des charges

Le cahier des charges donné est le suivant : nous devons remplacer la logique à relais câblée déjà montée dans l’entreprise Kuhn qui comme nous pouvons le voir sur la photo ci contre est très complexe de par la masse de câbles branchés, ce qui complexifie beaucoup tout ce qui est des interventions et des dépannages, par un automate S7-1200.

Nous devons aussi intégrer une IHM pour remplacer l’intégralité des boutons poussoir de mise en marche de chacune des 4 bandes ainsi que les boutons d’arrêt. Il faudra aussi pouvoir gérer les différents défauts et alertes.

De plus, il faut pouvoir intégrer facilement un détecteur supplémentaire et être capable de modifier le cycle de démarrage des bandes.

Schéma de l'armoire

Rétrofit schéma de puissance

Pour faire le rétrofit des schémas, nous avons utilisé le logiciel Q-electrotech.

Nous avons premièrement fait le schéma de puissance, en commençant par prendre les 3 phases et en mettant un interrupteur-sectionneur directement au départ, nous avons continué en faisant la première bande, constituée d’un disjoncteur magnéto thermique, d’un contacteur de puissance ainsi qu’un moteur triphasé qui est en dehors de l’armoire mais connectée au bornier de celle-ci.

Nous avons pu ensuite refaire la même chose pour les 3 autres bandes en changeant le nom des disjoncteurs associé à chaque bande.

Sur la droite du schéma, nous avons premièrement un sectionneur porte-fusible qui est l’élément de protection, suivi d’un transformateur qui prend en entrée le 400V disponible dans l’usine et qui en sortie, fournit du 230V qui est pour l’alimentation du klaxon, des capteurs de rotation. En dessous de celui-ci, nous avons l’alimentation AC/DC qui prend en entrée du 230V et donne en sortie du 24V continu pour alimenter notre automate et la partie commande dont on va parler dans la prochaine partie.

Schéma de puissance

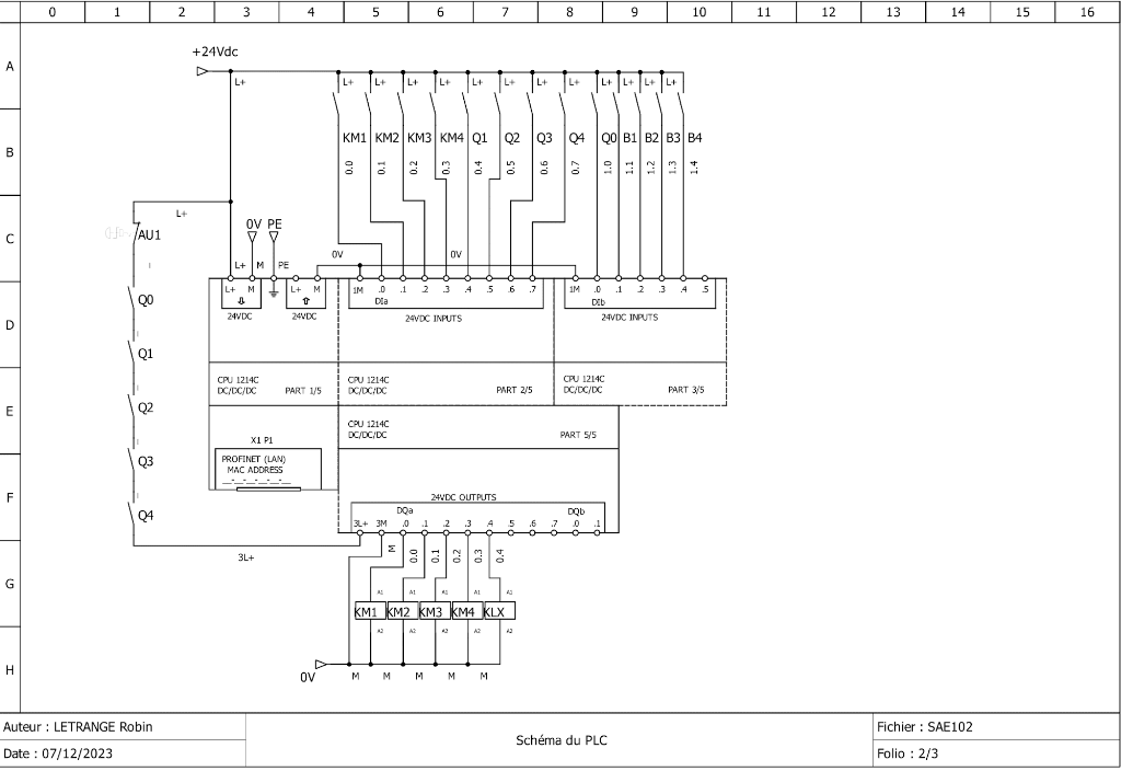
Rétrofit du schéma de commande

Pour la partie du schéma de commande, nous commençons au transformateur de la partie puissance qui fournit en sortie du +24Vdc.

Premièrement, nous avons dû chercher tous les appareils dont on aura besoin en commençant par l’automate qui est un siemens 1214C. Nous avons commencé par brancher sur le haut de cet automate, en tant qu’entrées, tous les contacteurs secondaires des bobines KM1, KM2, KM3, KM4, les 4 disjoncteurs ainsi que les 4 capteurs de rotations associés à chaque bande.

Nous avons ensuite branché sur les sorties, sur la partie basse du schéma, les bobines des contacteurs (KM1, KM2, KM3, KM4) ainsi que la commande du klaxon.

Sur la deuxième feuille à droite, nous avons représenté le voyant ‘sous tension’ les 4 capteurs de rotations, et le klaxon qui sont alimentés en 230Vac.

Schéma de commande 1 Schéma de commande 2

Câblage d'un ventilateur

Nous avons eu comme activité de commander un ventilateur par une IHM qu’on programmera sur TIA. Pour cela, nous avons les différents composants qui sont la prise pour brancher le ventilateur, un disjoncteur pour protéger le circuit et un relais qui sera commandé par l’automate. Le relai a deux sorties possibles, une en normalement ouverte et une en normalement fermée, ici nous voulons que le circuit se ferme lorsqu'on appuie sur le bouton, on choisit donc de se brancher sur la sortie normalement ouverte. Nous avons donc dû câbler nous même ces différents composants entre eux en dimensionnant la taille de nos câbles, en les coupant et dénudant.

Après avoir branché ces composants, nous l’avons relié à l’automate. Celui-ci ayant déjà tous les boutons de branché, nous avons dû faire des tests pour trouver les entrées qui sont reliées aux boutons de marche et d’arrêt.

Nous avons ensuite relié l’automate à l’ordinateur pour pouvoir programmer en Ladder et charger notre programme dans l’automate.

Câblage ventilateur

Programmation en Ladder

Pour succéder à l'analyse ainsi qu’aux schémas sur Qelectrotech, nous avons pu commencer la programmation en Ladder. Nous avons donc commencé par créer toutes les variables (entrées et sorties) en reprenant les noms des appareils que nous avons mis sur Qelectrotech.

Nous avons commencé en programmant la première bande: Dans un premier temps, nous avons mis en parallèle (pour représenter le OU logique) l’entrée du bouton marche avec l’auto maintien de la bobine, pour faire fonctionner la bobine une fois que nous avons appuyé sur le bouton poussoir marche et qu’elle reste allumé tant qu’on appuie pas sur arrêt ou qu’il n’y a pas de défaut.

Nous avons ensuite refait la même chose pour les bandes suivantes en ajoutant à chaque bande le contacteur secondaire de la précédente pour qu’il soit impossible de démarrer la bande 3 sans avoir allumé la deuxième.

Nous avons par la suite programmé la sortie ‘lien défaut’ en normalement fermé qui s’active lorsqu’un des disjoncteur est ouvert, ce qui explique qu’on ait mis que des cases normalement fermées sur TIA en série pour représenter la fonction ‘ET LOGIQUE’ pour tous les disjoncteurs ainsi que les capteurs de rotations. Dans ce cas, dès qu’un disjoncteur s’active, il ouvre donc le circuit et active le defaut.

Nous avons ensuite rajouté une équation avec ‘lien défaut’ qui est en fait l’auto-maintien du défaut . Nous avons mis plusieurs sorties sur la même équation pour programmer le défaut, le voyant défaut ainsi que le klaxon qui s’activent tous en même temps.

IHM Ventilateur Programmation Ladder Ventilateur Programmation Ladder Bande Programmation Ladder Défaut

Conclusion

Pour conclure, nous avons donc à partir du cahier des charges, remplacé la logique câblée qui est actuellement en place dans l’entreprise KUHN par une logique programmée avec une API ainsi qu’une IHM pour pouvoir commander chaque bande.

Nous pouvons ajouter qu’il resterait à améliorer encore nos équations en Ladder dans lesquelles, dans certains cas, possède plusieurs sorties dans la même équation.
Nous pouvons donner comme exemple l’équation de défaut qui possède 3 sorties : le klaxon, le voyant défaut ainsi que le défaut.

Remerciement

Nous remercions le professeur P.Celka de nous avoir encadré tout au long de notre SAE ainsi que toute l’équipe pédagogique. Nous remercions également l’IUT de Haguenau qui nous a mis à disposition des ordinateurs possédant le logiciel TIA portal V16, ce qui nous a permis de mieux comprendre ce logiciels durant les séances encadrées tout comme durant celles non encadrées, ainsi que des automates et IHM programmable pour pouvoir tester nos programmes dans des conditions plus ressemblantes à celles qu’on pourrait avoir dans des usines.

Footer Francium Digital